Community Center
The Batture — New Orleans
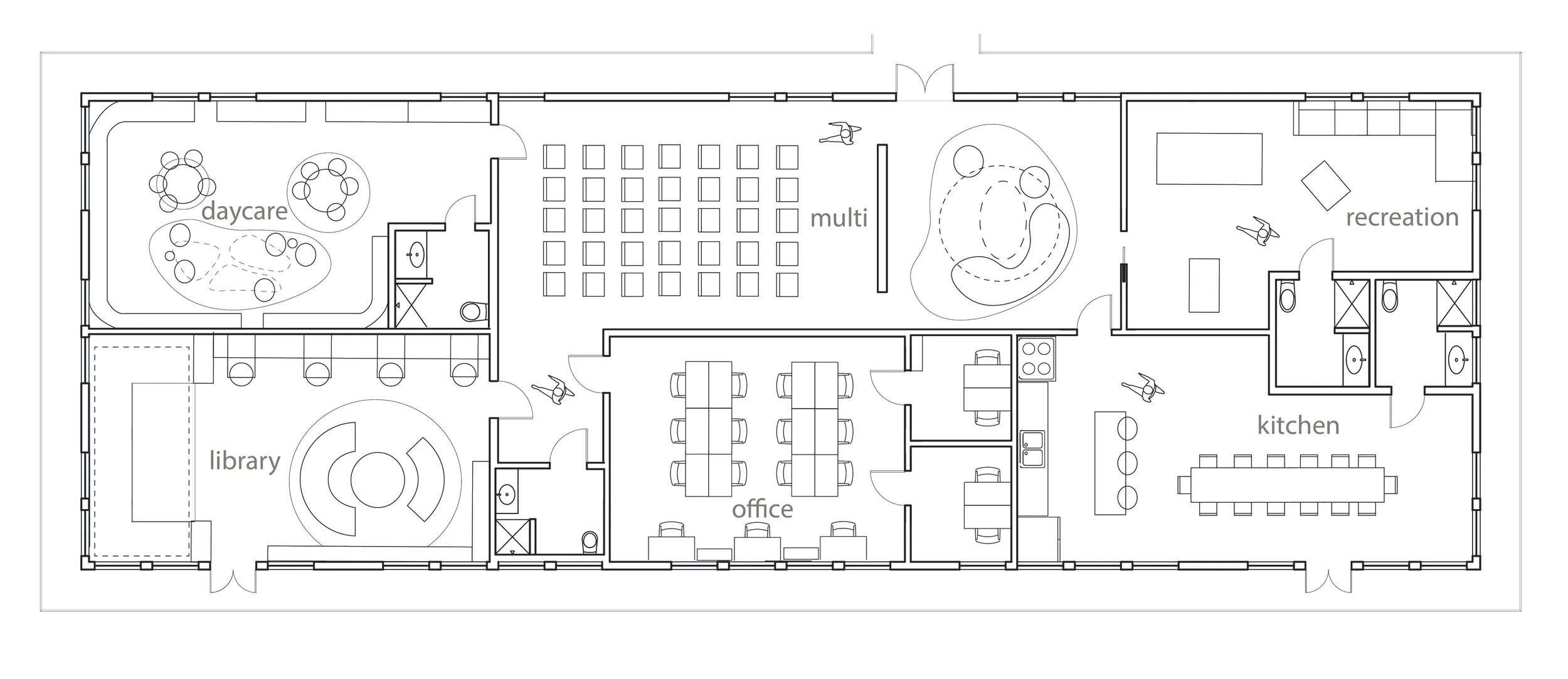
This multifunctional community center was designed to foster connection and support among families, working parents, and local residents along the Rigs at the Batture in New Orleans. The space prioritizes flexibility—featuring designated areas for quiet productivity, active play, and social interaction. A family-style kitchen and adaptable event space serve as the heart of the building, providing a warm, welcoming setting for shared meals, celebrations, and neighborhood events.
The design emphasizes modern form softened with natural materials, creating a grounded yet inviting atmosphere that promotes inclusivity and balance between work, family, and social life. From coworking nooks to child-friendly play zones, every element of the center is shaped by a deep understanding of community needs.
Deliverables included a detailed adjacency diagram, two building sections, a floor plan, material inspiration board, and five rendered perspectives. The full project was developed through a 3D model built in Rhino and SketchUp, with graphic and presentation support from Adobe Illustrator and Photoshop.
